Description
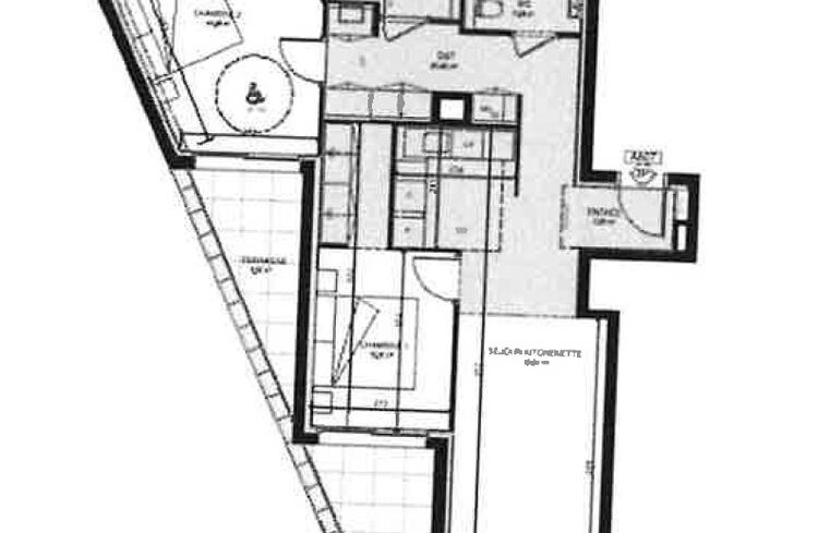
Nous vous proposons à la vente un magnifique appartement de 3 pièces d'une superficie habitable de 80,76 m² (carrez) et de deux terrasses de 15 m² situé dans une Résidence de standing à Beausoleil quartier Guynemer.
Il se compose d'une cuisine américaine ouverte sur séjour/salle à manger, de toilettes invités, de deux chambres avec placards, d'une grande salle de bains et de deux terrasses.
L'appartement est situé au 8ème étage d'un immeuble de grand standing de 9 étages construit en 2020 avec accès privatif et sécurisé à celui-ci, il est également doté de nombreuses prestations qui vous offriront tout le confort souhaité. Il est équipé d'un système de chauffage individuel avec climatisation réversible. Vous bénéficierez également d'une grande sécurité grâce au Concierge ainsi que d'une piscine dans la résidence.
Un parking et une cave complètent cet appartement.
Le secteur de Guynemer, situé dans la ville de Beausoleil, est un quartier résidentiel à proximité de la principauté de Monaco.
Par délégation de mandat AFIM France Real Estate
Map

